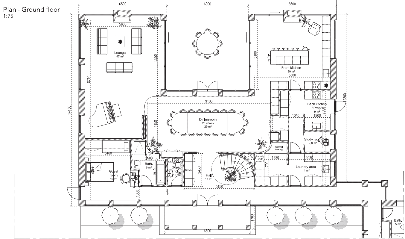
500 m2 arkitekttegnet villa

Bygherre:

Privat
Type:
Arkitekttegnet villa med fokus på bæredygtighed
Areal:
500 m2
Vores rolle:
Bygværksprojekterende
Ydelser:
Fra dispositionsforslag til udførelsesprojekt

Villaen er designet med bæredygtighed som gennemgående tema, hvor der i vid udstrækning anvendes trækonstruktioner, hvor det er muligt.

Vi har leveret statiske beregninger samt tilhørende detalje- og konstruktionstegninger, der understøtter bygningens bæredygtige ambitioner og sikrer en robust og holdbar konstruktion.

Arkitekt: Sjæl Arkitekter
Samarbejdspartner: Skotte Rådgivende Ingeniører & A. Bech